Airstage (VRF Systems) Indoor Unit High Static Pressure Duct
- Download :
-
Catalog
Model
| 208/230V Single-Phase | |
|---|---|
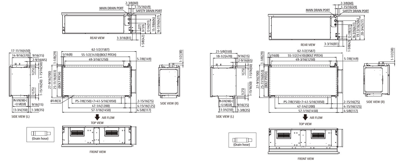
| ARUH72TLAV1 / TLAV2 | |
| ARUH96TLAV / TLAV2 | |
Dimensions
Feature
High energy saving and flexible design by using DC motor
- Static pressure can be set from 0 to 1.2 in.WG (0 to 300Pa). It can provide flexible airflow for some kinds of room’s form. Setting static pressure is easy by remote controller without working in the attic.
- High efficiency DC motor can reduce input value dramatically.
Static pressure selection
By using DC fan motor, it is possible to change static pressure range from 0 to 1.2 in.WG (0 to 300Pa).
The change of static pressure range is possible by function setting with wired / wireless remote controller.
One to One connection
One Outdoor unit can connect only one Indoor unit, it can make install freely in store, office and even house.
* Connectable combination.
- Outdoor unit :
- AOUA72RLAV
- Indoor unit :
- ARUH72TLAV1
- Outdoor unit :
- AOUA96RLAV
- Indoor unit :
- ARUH96TLAV
Easy service & maintenance
Left and Right fan motors can be removed separately which has made servicing of the indoor unit easier.
